
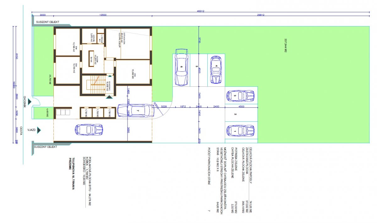
Nové byty - v Trnave", projekt s realizáciou do 1 roka. V rámci pripraveného projektu „RD 3 byty“ začíname s predajom troch veľkých 4- izbových bytov. Jeden byt je na prízemí a dva na pochodí. Ku každému bytu patrí terasa alebo veľký balkón, ktoré sú orientované do zeleného dvora a podiel na spoločných priestoroch. Výmera bytov je približne 100 m2 , k tomu balkóny a pivničné kobky. Dispozícia bytov je : priestranná vstupná hala, kuchyňa s komorou, jedáleň spojená s obývacou izbou so vstupom na balkón, 2x detská izba , rodičovská spálňa, technická miestnosť, kúpeľňa, samostatné WC. V kuchyni, kúpeľni, WC a chodbe je dlažba, v izbách plávajúca podlaha. Počas výstavby možno rozšíriť o ďalšiu izbu alebo pracovňu. Parkovanie pre 6 áut je riešené na vlastnom dvore. Spoločný pozemok 741 m2, vo dvore je riešená oddychová zóna s detským ihriskom a grilovacím odpočinkovým kútom o výmere 400 m2. Prípadne môže byť priestor rozdelený na 3 rovnocenné záhradky. Výborná a tichá lokalita s dobrým prístupom svetla vrátane južnej strany, železničná stanica a nemocnica 5 minút pešo. Byty možno počas výstavby upraviť podľa požiadavky kupujúceho. V cene sú maľovky na bielo, obložkové zárubne a dvere, komplet sanita, plávajúce podlahy podľa vlastného výberu a samostatné vykurovanie. Energetický certifikát A, B. Cena takto dokončené bytu vrátane pivnice, 2 parkovacích státí a časti záhradného pozemku 139 900 eur. Na požiadanie kupujúceho zabezpečíme kuchynskú linku a bytové rolldory, prípadne iné súčasti alebo úpravy bytu na základe individuálne dojednanej ceny. Termín dokončenia najneskôr 04/2017. Úver na bývanie vybavíme bezplatne na základe vlastných oprávnení, vrátane kompletného právneho a finančného servisu. V prípade záväznej rezervácie požadujeme priebežné financovanie dohodnuté a odsúhlasené s vybranou bankou. Bližšie informácie Vám poskytneme v sídle našej firmy, prosím volať na telefón 0905 720 275.
Cena: 139900€
Meno: Real Market Centrum
Telefón: 0905720275
Lokalita: Trnava,
Kategória:
» Nehnuteľnosti
» Predaj
» Byty 4 a viacizbové
Pridaný: 14.04.2016
Posledná modifikácia: 14.04.2016
Topovať
Nahlásiť zlý inzerát/SPAM
Nahlásiť chybnú kategóriu inzerátu
Všetky inzeráty užívateľa
Pridať do obľúbených inzerátov

Elektrikár Bratislava-NONSTOP
(15.01.2019)
Elektrikár Bratislava .Odstraňovanie porúch elektroinštalácií .Náš
elektrikár v Bratislave a okolí je Vám plne k dispozícií .
Vykonávame elektrikárske,elektroinštalačné práce .Opravy a montáž
elektroinštalácií v panelových bytoch a rodinných domoch .Rôzne
druhy opráv.Opravy zásuviek a…
dohodou
Karlova Ves
205×

Elektrikár Bratislava + okolie NONSTOP
(21.11.2018)
Elektroinštalácie (i menšieho rozsahu), opravy a úpravy
elektroinštalácií v bytoch, rodinných domoch a
kanceláriách.Odstraňovanie porúch na elektroinštaláciach,
odstraňovanie porúch zistených revíznym technikom,premiestnenie
zásuviek,vypínačov,svietidiel,montáž a opravy
svietidiel,zásuviek…
dohodou
Nové Mesto
150×

Elektrikár Bratislava-NONSTOP
(18.11.2018)
Elektrikár Bratislava .Odstraňovanie porúch elektroinštalácií .Náš
elektrikár je Vám plne k dispozícií . Vykonávame elektrikárske
práce .Opravy a montáž elektroinštalácií v panelových bytoch a
rodinných domoch .Opravy zásuviek a vypínačov,montáž
lustrov.Revízne správy .Kompletné…
dohodou
Nové Mesto
194×

Elektrikárske práce NONSTOP
(15.10.2018)
Ponúkame kompletné služby v odbore elektroinštalácie. Vykonávame
elektrikárske práce v rodinných a bytových domoch, v bytoch, v
priemyselných a rekreačných objektoch, dodávame elektroinštalačný
materiál (vypínače, zásuvky, svietidlá, rozvádzače, ističe,
domové telefóny, káble a ďalšie),…
dohodou
Petržalka
188×

Elektrikár Bratislava-NONSTOP
(14.10.2018)
Elektrikár Bratislava .Odstraňovanie porúch elektroinštalácií .Náš
elektrikár je Vám plne k dispozícií . Vykonávame elektrikárske
práce .Opravy a montáž elektroinštalácií v panelových bytoch a
rodinných domoch .Opravy zásuviek a vypínačov,montáž
lustrov.Revízne správy .Kompletné…
dohodou
Petržalka
203×
Všetky práva vyhradené ©2018